【入居者募集中】神浦定住促進施設
更新日:2026年4月1日

松山市では、忽那諸島最大の島である中島・神浦地区の旧教員住宅を活用し、移住希望者向けのお試し移住施設「神浦定住促進施設」を整備しています。
こちらの施設では、入居申込を受付中(入居者募集中)です。
【募集中の施設タイプ】
・2DK×1戸
・3DK×1戸
【募集期限】
・令和8年4月30日(木曜日)※17時必着
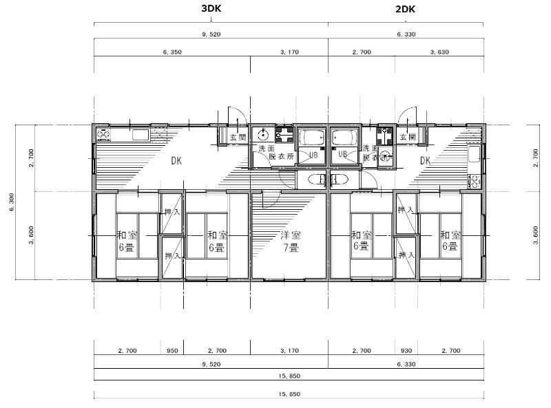
施設の概要

【中島・施設紹介篇】神浦定住促進施設 2DK #ごごしま・なかじま移住計画
【中島・施設紹介篇】神浦定住促進施設 3DK #ごごしま・なかじま移住計画
所在地
松山市神浦605番地1(神浦港徒歩5分)
入居対象者
松山市の島しょ部居住者以外で、島しょ部への移住を検討している人
利用期間
1カ月単位で最長1年(更新なし)
戸数
2DK×2戸
3DK×2戸
使用料
2DK:月額2万円
3DK:月額2万5千円
※合併浄化槽清掃手数料を含む。その他光熱水費は利用者が契約の上実費負担。
室内写真

キッチン

ダイニング

和室

洋室

洗面脱衣所 風呂

トイレ
※家財道具等は、付いておりません。入居者の持ち込みとなりますのでご注意ください。
間取り図

申込の流れ(下記1.~4.は概ね3 カ月です)
- 申請受付
- 面接審査(松山市役所中島支所にて実施)
- 面接結果通知
- 利用開始
選考方法
「書類審査」及び「面接審査」
【第1次審査】 「書類審査」 ※次に該当する場合は許可しない。
- 書類の不備(本市が指定する期日までに必要書類が提出されない場合を含む)
- 本市との信頼を損なう行為が申請者にあったことが確認された場合
【第2次審査】 「個別面接審査」(第1次審査を通過した者)
申請書類関係
―以下からダウンロードしてください―
使用変更許可申請・中止届について
入居中の方で、使用状況に変更がある方、使用許可期間中に退居される方は、使用変更許可申請または使用中止届の提出が必要です。
以下の様式を問合せ先まで送付いただくか、以下リンク先からオンラインにて申請をお願いします。
申請書類様式
オンライン申請(URL)
使用変更許可申請(えひめ電子申請システムe-tumo)(外部リンク)
使用中止届(えひめ電子申請システムe-tumo)(外部リンク)
PDF形式のファイルを開くには、Adobe Acrobat Reader DC(旧Adobe Reader)が必要です。
お持ちでない方は、Adobe社から無償でダウンロードできます。
Adobe Acrobat Reader DCのダウンロードへ
お問い合わせ
まちづくり推進課
〒790-8571 愛媛県松山市二番町四丁目7-2 本館6階
電話:089-948-6816
募集
- 令和8年度 松山市水道モニターを募集します
- 【入居者募集中】神浦定住促進施設
- 企業局財務会計システム再構築に関する情報提供依頼(RFI)を実施します
- 松山市放課後児童クラブの実施に関する条例(案)に対する意見を募集します
- 市有地を先着順で売却します
- 【27卒、第2新卒必見!】松山市役所業務説明会2026の参加者を募集します(人事課)
- 【募集終了】松山市公設卸売市場市況システム等運用保守業務委託に関する情報提供依頼(RFI)を実施します
- 就農希望者育成研修の受講者を募集します
- 多機能型生成AIサービス利用(一般競争入札)(デジタル戦略課)
- 松山の味をかたろう 学生による食文化ワークショップ
- 【結果公表】市営住宅(和泉南6丁目)の跡地活用に係るサウンディング型市場調査を実施します
- 松山市議会議員選挙における期日前投票立会人を募集します
- 「みんなの絵 大募集!」の応募作品を展示します
- 北条鹿島レストハウス喫茶スペース出店候補者を募集します【募集終了】
- 【結果公表】第3期松山市地産地消促進計画(案)に対する意見を募集します
- 【募集終了】地域資源を学び、「謎解き」しながら親子で巡ろう!松山まんなかウォークの参加者を募集します
- 松山市役所オープン・カンパニー(1月)の参加者を募集します(人事課)
- インターネット公有財産売却(市有地)の入札参加を募集します【終了しました】
- 四国遍路 繁多寺道、石手寺道ウォーキングの参加者を募集します
- 【募集終了】自動販売機の設置場所貸付に係る一般競争入札(冠山駐車場)
- 【募集終了】自動販売機の設置場所貸付に係る一般競争入札(道後温泉椿の湯)
- 松山市児童クラブ管理システム導入及び運用保守業務委託に関する意見招請依頼(RFC)を実施します
- 【結果公表】松山市食品ロス削減推進計画(案)に対する意見を募集します
- 【募集終了】「こども意見表明 ファシリテーター養成講座」の参加者を募集します
- 【結果公表】松山市DX推進戦略(案)に対する意見を募集します
- 【募集終了】「EC運営の基礎・ChatGPT実習講座」への参加者を募集します
- 【結果公表】松山市手話言語条例(案)に対する意見を募集します
- 【結果公表】松山市一般廃棄物(ごみ)処理基本計画(案)に対する意見を募集します
- 第22回坊っちゃん文学賞の表彰式の観覧者を募集します
- はぴまるの丘サポーター(動物愛護団体)による保護犬・保護猫の譲渡会でキッチンカー出店者を募集します
- 「市公式ウェブサイトAIナビ機能構築業務委託」に係る仕様書への意見等を募集します
- 松山市役所オープン・カンパニー(12月)と保護者向けの説明会の参加者を募集します(人事課)
- 「松山の未来を描くシンポジウム~流域治水とまちづくり~」の参加者を募集します
- 【終了】三津浜地区シェアショップの出店者を募集します
- 【結果公表】松山市第3期SDGs未来都市計画(案)に対する意見を募集します
- 【結果公表】第5次まつやま教育プラン21(案)に対する意見を募集します
- 【結果公表】第3次 長期的水需給計画(案)に対する意見を募集します
- 【募集終了】[市営住宅]第二和泉団地の入居者の募集を終了しました
- 【結果公表】松山市墓地等の経営の許可等に関する条例の一部改正(案)に対する意見を募集します。
- つばきフォトコンテスト2026の作品を募集します
- 【募集終了】まつやまECO動画コンテストの作品を募集します
- 【募集終了】児童クラブ運営事業に係るサウンディング型市場調査を実施します
- 【結果公表】松山市火入れに関する条例の一部改正(案)に対する意見を募集します
- 1,000人で考える まつやままちなか未来デザインワークショップ
- オープン市役所~1Day体験ツアー~を実施します
- 【募集終了】『坂の上の雲』のまちを歩こう26 松山ふるさとウォークin三津浜の参加者を募集します
- 【結果公表】松山市火災予防条例の一部改正(案)(林野火災の予防に関する事項)に対する意見を募集します
- 愛媛県で募集する「クラウド型被災者支援連携システム導入等業務」をお知らせします
- 【結果公表】松山市新庁舎整備基本構想(案)に対する意見を募集します
- 【募集終了】第9回議会報告会の参加者を募集します
- 【募集終了】第11回『坂の上の雲』のまち松山 サイクルロゲイニング大会の参加者を募集します
- 【結果公表】JR松山駅周辺整備に関するサウンディング型市場調査
- 【募集終了】公共施設等照明LED化事業に係るサウンディング型市場調査を実施します
- 【募集終了】人権啓発フェスティバル2025を開催します
- 令和7年8月6日からの大雨災害義援金
- 【募集終了】市営住宅の跡地売却に係るサウンディング型市場調査を実施します
- 令和7年度「まつやま環境フェア」子育て応援リユースマーケットの出店者を募集します ※募集は終了しました
- 観光DXセミナー(2回目)の参加者を募集します
- 【結果公表】第4期松山市中心市街地活性化基本計画(案)に対する意見を募集します
- 「親子de図書館探検」の参加者を募集します【終了しました】
- 「子どもインテリアパネル教室」の参加者を募集します【終了しました】
- 令和7年度「まつやま環境フェア」啓発ブースへの出展企業・団体等を募集します ※募集は終了しました
- 【結果公表】松山市新型インフルエンザ等対策行動計画(案)に対する意見を募集します
- 【募集終了】えひめ・まつやま産業まつり すごいもの博2025 のブース出展者を募集します
- 【終了】「みつはま蚤の市」の出店者を募集します
- 【募集終了】松山市中之川地下駐車場等の指定管理者を募集します
- 【結果公表】松山市車両基地跡地広域交流拠点施設に関するサウンディング型市場調査
- 【募集終了】松山中央公園プール(アクアパレットまつやま)の指定管理者を募集します
- 【結果公表】第二次松山市再犯防止推進計画(案)に対する意見を募集します
- 【募集は終了しました】松山市愚陀佛庵の指定管理者を募集します
- 工事・業者管理システム再構築に関する情報提供依頼(RFI)を実施します
- 【募集終了】令和7年度「親子で学ぼう☆水循環」の参加者を募集します
- 【募集終了】夏休み親子市場見学イベントの参加者を募集します
- 未利用市有地(土地)の一時貸付について公募します
- 松山市地域におけるまちづくり推進委員会の委員(2人程度)を募集します
- 【募集終了】令和7年度インターンシップ実習生を募集します
- 木質化で木の良さをPRしてくれる施設を募集します!
- 「ことば」の絵本をつくろう! ワークショップ参加者を募集します
- 令和7年度「水」への絵はがき募集(終了しました)
- 松山市窓口支援システム構築業務委託(公募型プロポーザル方式)(市民課)
- 【終了】三津浜地区シェアショップ「みつのほD区画」の出店者を募集します
- 【募集終了】自動販売機の設置場所貸付に係る一般競争入札(まつやま・ほりえ海の駅「うみてらす」)
- 【26卒、第2新卒必見!】松山市役所業務説明会2025の参加者を募集します(人事課)
- 【募集終了】松山市RPA再作成等業務委託仕様書案への意見招請を実施します
- 【終了】三津浜地区シェアショップ「みつのほC区画」の出店者を募集します
- 【結果公表】松山市消防総合計画(令和7年修正)(案)に対する意見を募集します
- 【募集終了】「松山市子ども・子育て会議」の委員を募集します
- 【26卒、第2新卒必見!】松山市役所業務相談会(2月実施)の参加者を募集します(人事課))
- 松山城センターゾーン 松山まんなかウォーク~地域資源をめぐってかるた集め~の参加者を募集します
- 【特定結果】道後温泉本館東側広場内の公衆トイレに係るネーミングライツ・パートナー
- 【募集終了】「みんなの絵 大募集!」で動物をテーマにした作品を募集します
- 【26卒、第2新卒必見!】松山市役所業務相談会(1月実施)の参加者を募集します(人事課)
- 【結果公表】第3次松山市環境総合計画(案)に対する意見を募集します
- 【結果公表】松山市中小企業振興計画【第2期計画】(案)に対する意見を募集します
- つばきフォトコンテスト2025の作品を募集します
- 松山駅周辺土地区画整理事業に伴う西口駅前広場外詳細設計業務委託(公募型プロポーザル方式)(交通拠点整備課)
- 松山市北条ふるさと館喫茶室の出店候補者を募集します【募集終了】
- 【結果公表】松山市犯罪被害者等支援条例(案)に対する意見を募集します
- 【募集終了】市営住宅の入居者の募集を終了しました(定期募集)
- 【結果公表】松山市こども計画(案)に対する意見を募集します
- 松山駅周辺地区車両基地跡地「みんなで考える新たな施設」ワークショップ
- 【募集終了】オリジナルかるた作成ワークショップの参加者を募集します
- 【結果公表】「松山市子ども・子育て支援法施行条例の一部改正(案)に対する意見を募集します。
- 【募集終了】「松山市子ども・子育て会議」の委員を募集します
- 三津浜地区シェアショップ「みつのわD区画」の出店者を募集します
- 【結果公表】特定個人情報保護評価に関する全項目評価書の再評価(案)(個人住民税賦課に関する事務)に対する意見公募手続の実施結果を公表します
- 【終了】「ご当地こなもんサミット2025in松山」の出店者を募集します
- 松山市全域から幼保小中連携推進事業(日浦小中・興居島小)における児童生徒を募集します。【募集は終了しました】
- 【結果公表】松山市指定障害福祉サービスの事業等の人員,設備及び運営に関する基準等を定める条例及び松山市障害福祉サービス事業の設備及び運営に関する基準を定める条例の一部改正(案)に対する意見を募集します
- 「松山総合公園~森の工作教室~」の参加者を募集します(参加者の募集は終了しました)
- 応急手当講習のご案内
- 高齢者ここから元気教室(こころとからだ今日から元気教室)(教室終了)
- 「防災出前講座」のご案内
- 道後温泉本館全館営業再開・改築130周年記念 『坂の上の雲』のまちを歩こう25 松山ふるさとウォークin道後の参加者を募集します
- 松山市地域包括支援センター運営業務委託(公募型プロポーザル方式)(長寿福祉課)
- 松山市福祉総合システムの標準化に関する情報提供依頼(RFI)を実施します
- 【募集終了】ふるさと納税型クラウドファンディングで「こども本の森」のための寄附を募ります
- 四国遍路 浄瑠璃寺道ウォーキングの参加者を募集します
- 【募集終了】第10回『坂の上の雲』のまち松山サイクルロゲイニング大会の参加者を募集します
- オフサイトPPA方式による太陽光発電設備等導入事業に係る公募型プロポーザルの実施について
- 松山市公設水産地方卸売市場では関連事業者を募集しています
- あなたの「とっておきの松山」写真を募集します
- 【結果公表】特定個人情報保護評価に関する全項目評価書の再評価(案)(予防接種に関する事務)に対する意見を募集します
- まつやまライブ!まちなかパフォーマンス事業<まちなか文化活動補助金>
- 「松山総合公園 生き物ふれあい教室~秋の虫の音色編~」(参加者の募集は終了しました)
- 【受付終了】松山圏域中小企業販路開拓市2026の地元売り手事業者を募集します
- 【募集終了】えひめ・まつやま産業まつり「すごいもの博2024」のブース出展者を募集します
- 令和7年度 囲碁・将棋大会の参加者を募集します(参加者の募集は終了しました)
- 令和6年度 動物愛護のためのクラウドファンディング実施結果
- 【募集終了】松山総合公園「生き物ふれあい教室~夏の昆虫編~」の参加者を募集します
- 【募集終了】「松山市立子規記念博物館」の第四期指定管理者を募集します
- 【募集終了】「松山市坂の上の雲ミュージアム」の第五期指定管理者を募集します
- 【募集終了】夏休み親子市場見学イベントの参加者を募集します
- 令和8年度「いきいきチャレンジ健康アプリ・スマホ教室」の参加者を募集します
- 【募集終了】松山市地域振興構想策定に関する地域の魅力発信ワークショップの参加者を募集します
- 松山市中央卸売市場では関連事業者を募集しています
- 【募集終了】令和6年度「親子で学ぼう☆水循環」の参加者を募集します
- 「ふるさとCM大賞えひめ'26」出品作品を募集します
- 松山市公営住宅システム再構築調達仕様書案への意見招請を実施します
- 令和6年度「水」への絵はがき募集(終了しました)
- 環境について考える市民ワークショップの参加者を募集します
- インターネット公有財産売却(物件)の第1回の参加入札を募集します(管財課)
- 松山市就学事務システム調達に係る情報提供依頼(RFI)を実施します
- まちづくり提案制度(次世代育成支援事業)の申請団体の募集について
- 車両基地跡地広域交流拠点施設基本計画策定業務委託(公募型プロポーザル方式)(交通拠点整備課)
- 【募集終了】松山総合公園の賑わい創出にかかるトライアル・サウンディングを実施します
- 松山市役所オープン・カンパニー(2月)の参加者を募集します(人事課)
- 【募集終了】松山市役所業務説明会2024【オンライン開催】の参加者を募集します(人事課)
- 三津浜地区チャレンジショップ1号店の出店者を募集します(終了)
- 【結果公表】松山市第7期障がい福祉計画・松山市第3期障がい児福祉計画(案)に対する意見を募集します。
- 【募集終了】自動販売機の設置場所貸付に係る一般競争入札(道後温泉本館1階)
- 【募集終了】「松山市総合計画審議会」の委員を募集します
- 【結果公表】松山市での感染症の予防のための施策の実施に関する計画(松山市感染症予防計画)(案)に対する市民意見公募手続の実施結果を公表します
- 令和6年能登半島地震災害義援金
- 松山市商店街出店奨励金(松山市商店街空き店舗出店促進事業奨励金)
- 【結果公表】特定個人情報保護評価に関する全項目評価書の再評価(案)(地方税の収納管理に関する事務)に対する市民意見公募手続の実施結果を公表します
- 【結果公表】第4次松山市食育推進計画(案)に対する市民意見公募手続の実施結果を公表します
- 【募集終了】自動販売機の設置場所貸付に係る一般競争入札(道後温泉椿の湯1階及び道後温泉別館 飛鳥乃湯泉1階)
- 【結果公表】松山ブロックごみ処理広域化基本計画(案)に対する意見を募集します
- 【結果公表】松山市指定障害福祉サービスの事業等の人員,設備及び運営に関する基準等を定める条例等の改正(案)に対する市民意見公募手続の実施結果を公表します
- 松山外環状道路空港線【余戸南IC~東垣生IC】開通記念イベントの開催について
- 【結果公表】松山市指定居宅サービス等の事業の人員,設備及び運営に関する基準等を定める条例等の改正(案)に対する市民意見公募手続の実施結果を公表します
- 【募集終了】坊っちゃんスタジアム内売店出店候補者を募集します。
- 【結果公表】松山市健康増進計画2024~健康日本21(第三次)まつやま版~(案)に対する市民意見公募手続の実施結果を公表します
- 【結果公表】第5期松山市地域福祉計画・地域福祉活動推進計画(案)に対する市民意見公募手続の実施結果を公表します
- 令和8年度松山市市民活動推進補助金の申込の受付について(立ち上がり支援事業・成熟促進支援事業・市民協働まちづくりモデル事業)【募集終了】
- 【結果公表】松山市国民健康保険第3期保健事業実施計画(データヘルス計画)・第4期特定健康診査等実施計画(案)に対する市民公募手続の実施結果を公表します
- 【結果公表】第9期松山市高齢者福祉計画・介護保険事業計画(案)に対する意見を募集します
- 第37回松山市長杯障がい者卓球大会の参加者を募集します
- 【結果公表】松山市文化財保存活用地域計画(案)に対する市民意見公募手続の実施結果を公表します
- 【結果公表】松山市空家等対策計画の中間見直し(案)(マンション管理適正化推進計画(案)も含む)に対する市民意見公募手続の実施結果を公表します。
- 【結果公表】第4次まつやま教育プラン21(改訂版)(案)に対する市民意見公募手続の実施結果を公表します
- 「食べよう!使おう!松山産」掲載店舗を募集しています
- 第9回『坂の上の雲』のまち松山 サイクルロゲイニング大会の参加者を募集します
- 松山市障がい者フライングディスク競技大会の参加者を募集します
- 【募集終了】第一新開団地ガス供給事業者を募集します
- 松山市斎場再整備事業に関する「官民対話」の参加者を募集します
- 【受付終了】令和8年度 松山市競争入札参加者資格審査申請書の受付について
- 【結果公表】盛土規制法の規制区域(案)への意見を募集します
- 【募集終了】松山市道後温泉本館等の指定管理者を募集します
- 【募集終了】別府第一市民運動広場ほか5施設の指定管理者を募集します
- 【募集終了】松山市中央卸売市場 市場見学イベントの参加者を募集します
- 高校生・大学生等による環境ミーティングの参加者を募集します
- まちなか文化活動補助金【まつやまライブ!まちなかパフォーマンス事業】を募集します
- 【募集終了】松山市庚申庵史跡庭園の指定管理者を募集します
- 【結果公表】松山市情報化推進指針2019(令和5年度改訂案)に対する意見を募集します
- 【募集終了】松山市SDGs推進コンダクターの募集について
- 【募集終了】「EV充電器導入事業」の共同事業者を募集します(環境モデル都市推進課)
- 三津浜地区シェアショップ「みつのわC区画」の出店者を募集します
- ゲートキーパー養成講座基礎研修の受講生を募集します
- 令和5年度「水」への絵はがき募集(終了しました)
- 令和7年度 移住者住宅改修支援事業
- 【募集終了】母子支援員・債権徴収職員(フルタイム/会計年度任用職員)を募集します(子育て支援課)
- 【結果公表】史跡松山城跡樹木管理計画(案)に対する市民意見公募手続の実施結果を公表します
- 【募集終了】松山市地域振興構想策定懇話会の構成員を募集します
- 【結果公表】特定個人情報保護評価に関する全項目評価書の再評価(案)(地方税の収納管理に関する事務)に対する市民意見公募手続の実施結果を公表します
- 松山市ふれあい・いきいき「緩和型サロン」の登録団体を募集します
- 松山市内部事務システム再構築及び電子決裁基盤調達仕様書案に係る意見招請を実施します
- 2023年トルコ・シリア地震救援金の受け付けを終了しました
- 【募集終了】令和5年度 松山春まつり(お城まつり)大名武者行列の参加者を募集します
- 【募集終了】道後温泉 冠山駐車場における自動販売機設置に係る入札
- 【結果公表】第2期松山市子ども・子育て支援事業計画の中間見直し(案)に対する市民意見公募手続の実施結果を公表します
- 【終了】三津浜地区チャレンジショップ2号店 3期目出店者を募集します
- 【募集終了】移住者交流会「まつやま日和~松山での子育てについて話そう~」の参加者を募集します
- BANBAN魅力発見!坊っちゃんスタジアムベースボールDAYの参加者を募集します
- 【結果公表】第二期松山市文化芸術振興計画(案)に対する意見公募手続の実施結果を公表します
- 【募集終了】松山市北条ふるさと館喫茶室出店候補者の募集
- まつやまに泊まろうキャンペーン事業業務委託(公募型プロポーザル方式)(新型コロナウイルス対策支援事業実行委員会)
- 【参加者募集!!】10月16日(日曜日)「重信川サイクリングロードレンタサイクル(スポーツバイク)体験会」
- 『坂の上の雲』のまちを歩こう23 風早ウォーク~河野氏発祥の地をたずねて~の参加者を募集します
- 第8回『坂の上の雲』のまち松山 サイクルロゲイニング大会の参加者を募集します
- 【募集終了】移住者交流会「まつやま日和~松山の暮らしについて語り合おう~」の参加者を募集します
- 「キャンプフォトコンテスト」の作品を募集します
- 【募集終了】自動販売機設置事業者の公募を行います(人権啓発課)
- 【募集終了】「いじめをなくすポスター」を募集します
- 松山市鳥獣被害防止対策協議会が実施する令和7年度中島捕獲イノシシ収集運搬業務の一般競争入札
- 松山市鳥獣被害防止対策協議会が実施する有害鳥獣捕獲機材(箱わな)及び鳥獣感知センサー納入業務の一般競争入札(郵便入札)
- 「ふるさとCM大賞えひめ’24」出品作品を募集します
- 【募集終了】自動販売機設置事業者の公募を行います(生活衛生課)
- ウクライナ人道危機救援金を募集します
- 令和4年度 松山市会計年度任用職員(フルタイム就労支援専門員)を募集します(障がい福祉課)
- 松山市立図書館情報システム再構築事業業務委託(公募型プロポーザル方式)(中央図書館事務所)
- 【募集終了】特定個人情報保護評価に関する全項目評価書の再評価(案)(予防接種に関する事務)に対する意見を募集します
- 持続可能な道後温泉協議会の賛助会員を募集します
- 松山圏域消防指令センター共同運用実施計画(案)に対する意見を募集します【募集終了】
- 「松山市SNS子ども子育て相談窓口事業」業務委託(公募型プロポーザル方式)(子ども総合相談センター事務所、子育て支援課)
- 【募集終了】特定個人情報保護評価に関する全項目評価書(案)(予防接種に関する事務)に対する意見を募集します
- 保育給食材料納入業務(無洗米)に係る一般競争入札を実施します(保育・幼稚園課)【参加資格確認申請の受付は終了しました】
- 県内向けプロモーション業務委託(公募型プロポーザル方式)(広域観光連携推進協議会)
- 市指定有形文化財「掩体壕」と「平和資料展」の見学会の参加者を募集します
- 【募集終了】「ふるさとCM大賞えひめ’22」出品作品を募集します
- AI-OCRサービス利用(一般競争入札)(ICT戦略課)
- 松山MICEブランドタグラインロゴマーク等制作業務委託((公財)松山観光コンベンション協会)
- 【中止】松山南学校給食共同調理場ほか106施設で使用する電気の調達に係る一般競争入札について
- 松山市グリーンツーリズム体験メニュー開発業務委託(公募型プロポーザル方式)(松山市グリーンツーリズム体験メニュー開発事業実行委員会)
- 松山市駐車場事業経営戦略(案)に対する市民意見公募手続の実施結果の公表
- 「松山市道後温泉審議会」の公募委員を募集します【募集終了】
- 松山市駐車場事業経営戦略(案)に対する意見を募集します(募集終了)
- 道後温泉別館 飛鳥乃湯泉における自動販売機設置に係る一般競争入札
- 松山市指定障害福祉サービスの事業等の人員、設備及び運営に関する基準等を定める条例等の一部改正(案)に対する意見を募集します
- 道後温泉椿の湯における自動販売機設置に係る一般競争入札
- 愛媛を訪れる外国人観光客への「愛顔(えがお)のおもてなし講座」の参加者を募集します
- 松山市スポーツ推進計画(案)に対する意見を募集します(募集終了)
- 令和2年7月豪雨災害義援金の募集を終了しました
- 【募集終了】松山市市民課及び各市民サービスセンターにおけるキャッシュレス決済に係る指定代理納付者の選定について(一般競争入札)(市民課)
- 松山市指定居宅サービス等の事業の人員,設備及び運営に関する基準等を定める条例等の一部改正(案)に対する意見を募集します
- 松山市校納金徴収管理システム調達仕様書案に係る意見招請を実施します
- 第2期松山市地産地消促進計画(案)に対する意見を募集します【募集終了】
- 中須賀第2雨水排水ポンプ場外17施設で使用する電気の調達に係る一般競争入札の情報
- 【募集終了】衆議院議員総選挙・最高裁判所裁判官国民審査の期日前投票立会人を募集します(選挙管理委員会事務局)
- 松山市景観計画(追加:三津浜地区景観計画区域の案)に対する意見を募集します(募集終了)
- 「誘客多角化等のための魅力的な滞在コンテンツ造成」実証実験(第二次)への提案を行う事業者について【募集】
- 久谷(荏原・坂本)地区タウンミーティングの参加者を募集します(募集終了)
- 生ごみ水切り啓発のピクトグラムを募集します【募集終了】
- 【募集終了】道後温泉別館 飛鳥乃湯泉及び椿の湯の指定管理者を募集します
- 【募集は終了しています】特例奨学資金貸付制度について
- 「マツワカ」新規メンバーを募集します
- 「マツワカ!ポスターコンペ2020」の第1回ワークショップの参加者を募集します
- 松山市国土強靭化地域計画(案)に対する意見を募集します【募集終了】
- 松山市特別用途地区建築条例の一部改正(案)に対する意見を募集します
- ことばのちからイベント運営業務委託(公募型プロポーザル方式)
- 農業委員候補者及び農地利用最適化推進委員候補者を募集します(農業委員会事務局)
- 二番町駐車場跡地のサウンディング型市場調査提案概要を公表します
- 令和3年2月実施 松山市会計年度任用職員(フルタイム事務補助職員)の募集
- 令和8年度 公民館年間使用調整会の開催について
- 水道台帳管理システム調達仕様書案に係る意見招請を実施します
- 【募集は終了しました】令和8年4月に大学・短大へ入学される方を対象とした松山市奨学生の募集について
- 松山市健康づくり応援パートナー登録事業 登録企業等を募集します ~従業員やご家族の健康づくりに取り組みませんか~
- 【募集終了】つばきフォトコンテスト2022作品を募集します
- 令和3年4月採用 会計年度任用職員(フルタイム栄養士)を募集します(松山市学校給食会)【募集終了】
- 【募集終了】道後温泉 冠山駐車場における自動販売機設置に係る一般競争入札
- ハイムインゼルごごしま
- 指定管理者制度を導入している市有施設で使用する電気の調達に係る一般競争入札の情報【申請期間終了】
- 【結果公表】第3次松山市自殺対策基本計画(案)に対する意見を募集します
- 【お詫び】事業中止のお知らせ
- 【募集終了】夏休み親子市議会体験ツアーの参加者を募集します
- 【募集終了】東京2020オリンピック聖火リレー 聖火ランナーの募集
- 令和4年度「水」への絵はがき募集(終了しました)
- B&Gウォータースポーツプロジェクト「アクアスロン&マリンスポーツ体験教室」の参加者を募集します
- 公民館を利用して教室や習いごとなどをしたい方への説明会を開催します【終了しました】
- 松山市がん対策推進条例(案)に対する意見を募集します【意見募集終了】
- 『坊っちゃん文学賞作品集1988-2017』限定150部を販売しました(販売は終了しています)
- 平成30年7月豪雨被災者生活再建特別支援金の受け付けを開始します
- 【募集終了】日露交歓コンサート2021松山公演の鑑賞者を募集します
- 松山市豪雨災害義援金の受付を終了しました
- 愛媛県豪雨災害義援金の受付を終了しました
- 椿園を歩こう!-園芸教室(椿園)ーの参加者を募集します
- 【松山市立中央図書館】「令和7年度 おはなしボランティアステップアップ教室」を開催します【受付終了しました】
- 「松山市市民活動推進基金」寄付金を募集しています
- 「松山市児童家庭相談システム構築事業」業務委託に伴う、総合評価落札方式による一般競争入札(子ども総合相談センター事務所)
- 節水型トイレ改修助成制度(受付終了)
- 松山市愛顔っ子応援券交付事業登録店舗募集[継続]
- 【募集終了】第6回議会報告会を開催します(参加者募集)
- 松山市庁舎本館外59施設で使用する電気の調達に係る一般競争入札の情報を公開します
- 新規就農者育成総合対策(経営開始資金)について【旧農業次世代人材投資事業(経営開始型)】
- 農地中間管理事業で農地の貸し借りができます
- 児童クラブの支援員募集
- 令和8年度 わが家のリフォーム応援事業
- 寄付・ボランティア
- 広告募集

